Listed by JOSEPH CUTAJAR of ONE SOTHEBY'S INTERNATIONAL REALTY
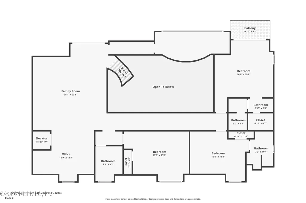
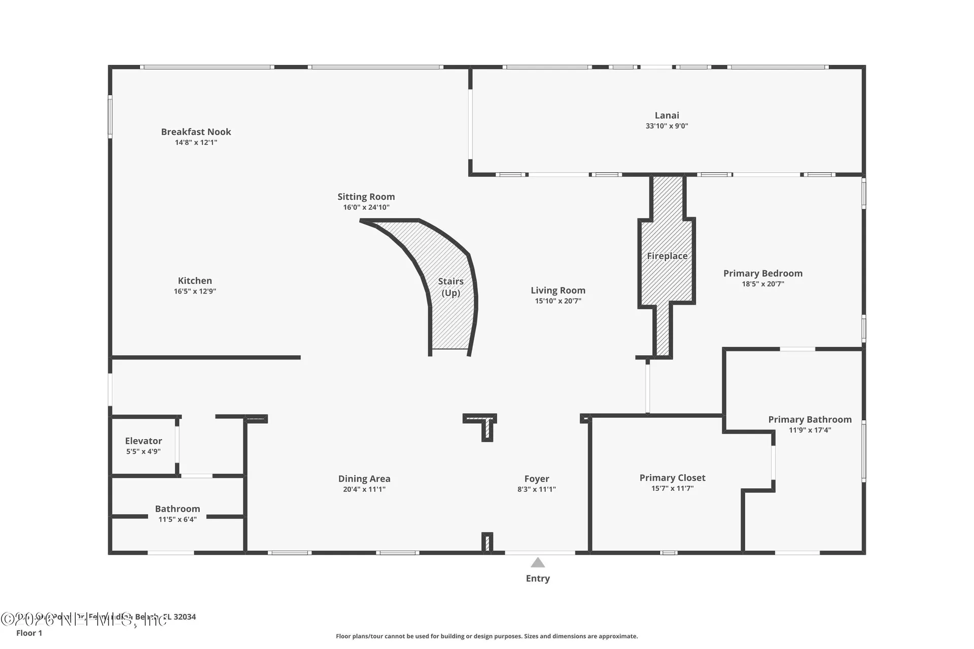
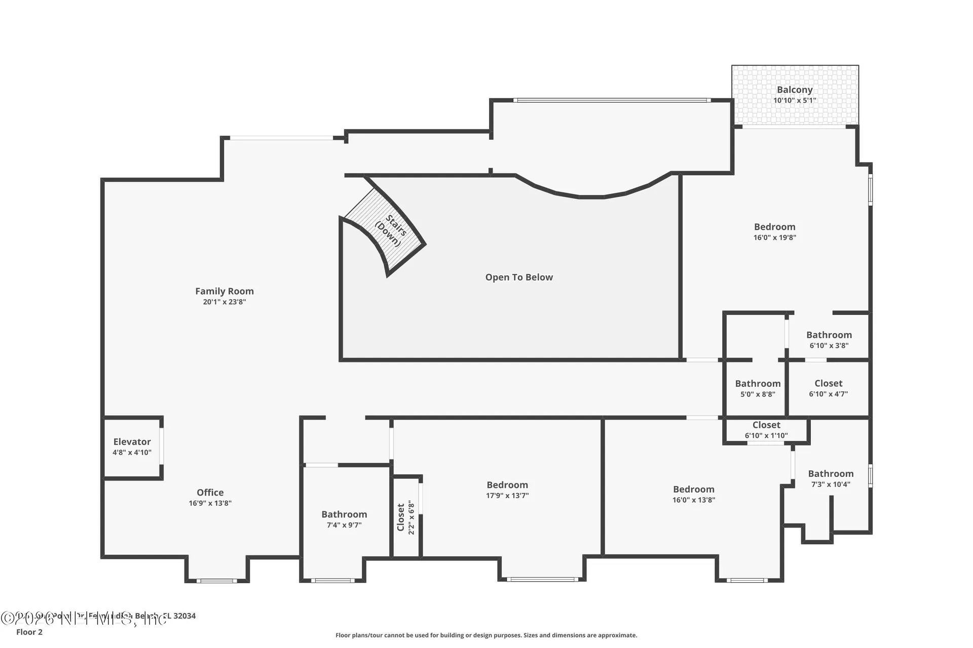
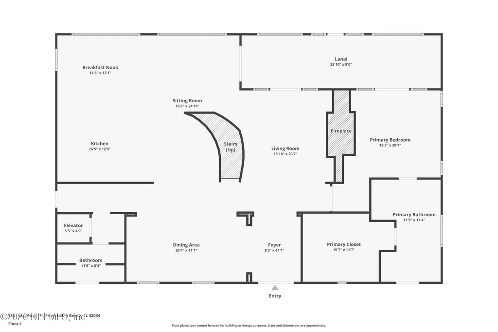
Set within the exclusive gated Long Point enclave of Amelia Island Plantation, this exceptional waterfront estate offers refined coastal living with sweeping marsh and Intracoastal Waterway views. Spanning 5,968 sq. ft., the 5 bedroom, 5 full-bath and 2 half bath residence was completely reimagined in a comprehensive 2017 renovation led by renowned architect John Dodd, constructed by Gorham Custom Builders, and curated by Robyn Branch Design, creating a timeless blend of architectural sophistication and livable luxury. The open-concept main living area is anchored by a dramatic floating oak staircase and expansive windows that flood the home with light and frame unforgettable sunsets. Natural light oak flooring, gas fireplace, custom millwork, and bespoke architectural details elevate every space. The chef's kitchen is both striking and functional, featuring quartzite countertops and top-tier Miele and Sub-Zero appliances. The primary suite is a serene retreat with tranquil water view a spa-inspired bath, and an expansive custom wardrobe. Additional living spaces include a media room, study, elevator access, climate-controlled storage, and well-appointed guest accommodations. Features include 300 bottle wine storage, Luminaire entry chandelier, Lutron lighting system, Mooney's Custom Woodworks cabinetry, Silk Wallpaper. Outdoor living is equally exceptional with a heated saltwater pool, screened porch with summer kitchen, and a deep-water dock with Ipe decking, accommodating a 35-foot boat and a 16,000-lb boat lift, offering direct access to the Intracoastal. Enhanced by extensive infrastructure upgrades, lush landscaping this is a truly rare Long Point offering. All furniture available for purchase.

Listing Tools

Property Details of 135 Long Point Drive

Map Location

Mortgage Calculator


$
$
%
Est. Mortgage:
$/month over payments
Federal 30-year interest rate: 6.09% last updated on Feb 12, 2026. * The above figures are estimates provided by Union Street Media using the FRED® API, and are not endorsed or certified by the Federal Reserve Bank of St. Louis. Check with your lender for actual interest rates.

 "Based on information submitted to Northeast Florida Association of REALTORS as of February 13, 2026 1:37 AM EST . All data is deemed reliable but is not guaranteed accurate by the MLS. All information should be independently reviewed and verified for accuracy. IDX information is provided exclusively for consumers’ personal, noncommercial use and may not be used for any purpose other than to identify prospective properties consumers may be interested in purchasing."

 
 

 

 

Hi there! How can we help you?

Contact us using the form below or give us a call.

Send Us A Message:

I agree to receive marketing and customer service calls and text messages from The Moorman Group. To opt out, you can reply 'stop' at any time or click the unsubscribe link in the emails. Consent is not a condition of purchase. Msg/data rates may apply. Msg frequency varies. Privacy Policy.

Do not fill in this field:

This site is protected by reCAPTCHA and the Google Privacy Policy and Terms of Service apply.

Hi there! How can we help you?

Contact us using the form below or give us a call.

Send Us A Message:

Do not fill in this field:

This site is protected by reCAPTCHA and the Google Privacy Policy and Terms of Service apply.

Hi there! How can we help you?

Contact us using the form below or give us a call.

Send Us A Message:

Do not fill in this field:

This site is protected by reCAPTCHA and the Google Privacy Policy and Terms of Service apply.

Do not fill in this field:

This site is protected by reCAPTCHA and the Google Privacy Policy and Terms of Service apply.

Do not fill in this field:

This site is protected by reCAPTCHA and the Google Privacy Policy and Terms of Service apply.

Do not fill in this field:

This site is protected by reCAPTCHA and the Google Privacy Policy and Terms of Service apply.

$

Do not fill in this field:

This site is protected by reCAPTCHA and the Google Privacy Policy and Terms of Service apply.